Now Offering 24hr Structural Steel Fabrication & Welding Services!
Welcome to Miami Shop Drawing Engineers, LLC
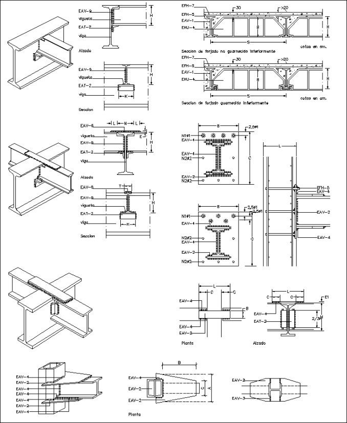
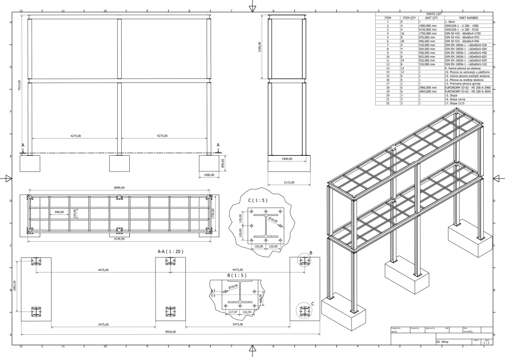
Located in Miami, Florida, where we specialize in providing accurate and high-quality shop drawings for structural work and mechanical trades. Our team of experienced enginers, designers, and drafters are committed to delivering shop drawings that meet all industry standards and regulations.
About Us
Welcome to
Miami Shop Drawing Engineers
We leverage the latest software and technology to produce shop drawings that are optimized for fabrication and installation, ensuring that your project is completed on time and within budget. Our expertise in structural work and mechanical trades allows us to create shop drawings that are tailored to your specific project needs, ensuring that everything is designed to perfection.
More About Us
Client satisfaction
At our Miami Shop Drawings Engineers, LLC, we understand the importance of shop drawings in the construction industry. That’s why we strive to provide our clients with the best possible service, and we’re always happy to answer any questions you may have. Whether you’re an architect, contractor, or fabricator, we’re here to help you achieve your goals and make your project a success.
References
Reviews From Our Clients
Get In Touch
if you’re looking for reliable and accurate shop drawings in Miami, look no further than our engineering company. Contact us today to learn more about our services and how we can help you with your next project.





